Plaine Monceau - 5 Pièces 144.37 m2 - 5eme étage

5 pièce(s)
3 chambre(s)
144m²

Plaine Monceau - 5 Pièces 144.37 m2 - 5eme étage - 75017 Paris 17ème - Réf 86885611

1 870 000 €dont 2,75% TTC à la charge de l'acquéreur1 820 000 € hors honoraires
EXCLUSIVITE – JOUFFROY D'ABBANS - PRONY -
Au cœur de la Plaine Monceau, dans un très bel immeuble haussmannien de standing avec gardien et parfaitement sécurisé,
Ravier Immobilier vous propose un appartement à rafraichir de 5 pièces 144.37 m2 situé au 5ème étage avec ascenseur entièrement au calme sur cour arborée.
Appartement, à la fois élégant et fonctionnel.

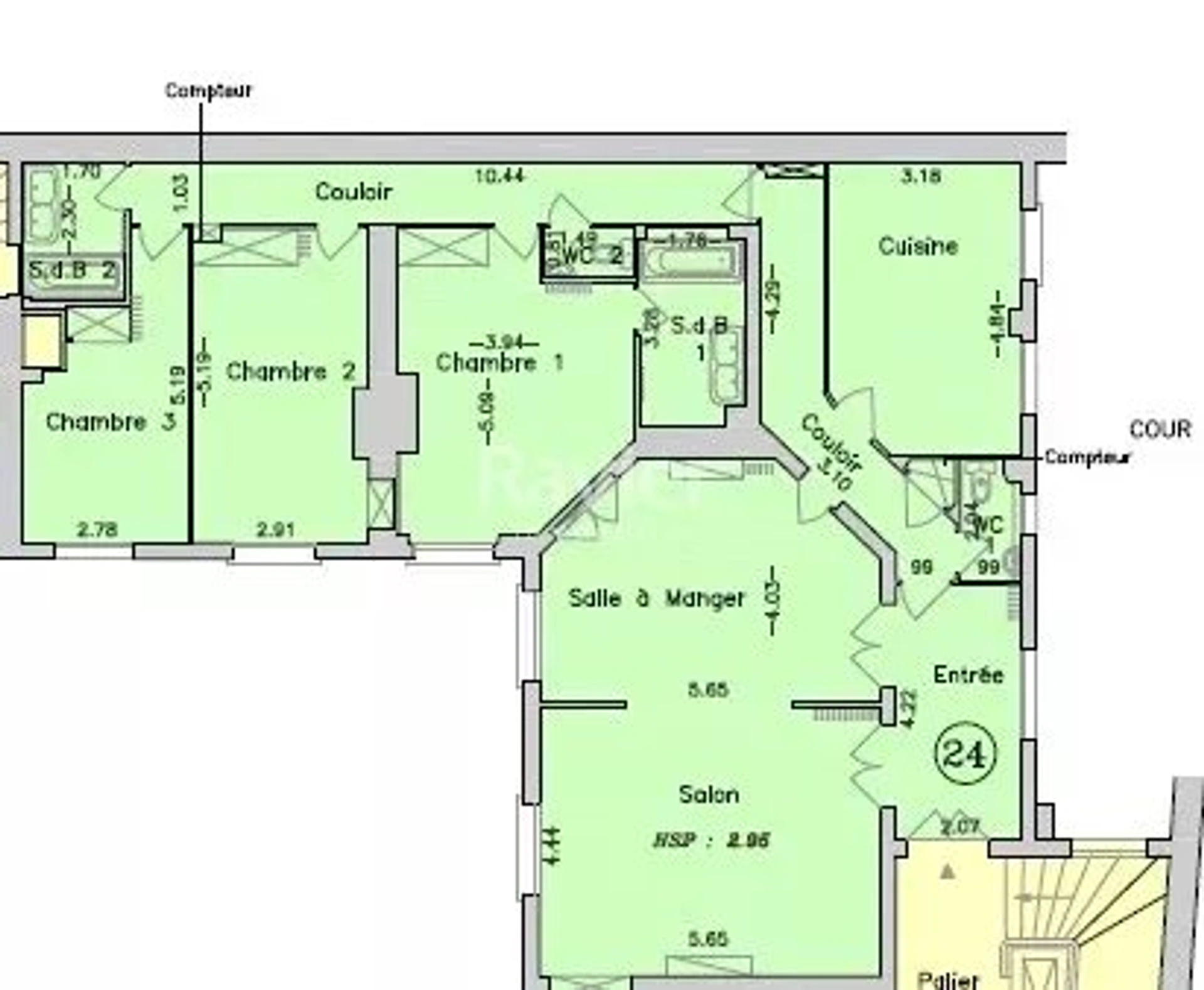
Il se compose d’une entrée accueillante, d’un vaste double séjour, d’une grande cuisine, trois chambres, une salle de bains, une salle de douche et deux toilettes.

Deux caves en sous-sol complètent ce bien d’exception.
Une place de parking proposée en sus est également disponible.

Idéal pour profiter pleinement du confort et de la qualité de vie qu’offre ce quartier recherché, à proximité immédiate du parc Monceau, des commerces et des transports.

Métro : WAGRAM (220M)
Sectorisation :
Ecole maternelle: RENAUDES
Ecole élémentaire: FOURCROY
Collège: CARNOT

Cet appartement reflète tout le charme de l’haussmannien : parquet, élégantes moulures, cheminées.

Immeuble soumis au régime de la copropriété :
LOI ALUR : Aucune procédure en cours à ce jour sur le fondement des articles 29-1 A et 29-1 de la loi n°65-557 du 10 juillet 1965, ni de l’article L.615-6 du Code de la Construction et de l’Habitation.
Un état actualisé des procédures sera demandé au syndic pour le jour de la signature du compromis ou de la promesse de vente.

Honoraires agence charge vendeur.
DPE: (D) 224 kWh/m²/an // (D) 49 kg CO2/m2/an – 220 kWh/m²/an d’énergie finale.
Estimation des coûts annuels d’énergie du logement : entre 1 720 € et 2 380 € par an.

Les informations sur les risques auxquels ce bien est exposé sont disponibles sur le site Géorisques : www.georisques.gouv.fr
Notre barème d'honoraires est disponible sur www.ravier-immobilier.com
Aspects financiers
Estimation des coûts annuels d'énergie du logement
Entre 1720 € et 2380 € par an
Montant estimé des dépenses annuelles d’énergie pour un usage standard : sous forme de fourchette avec indication de la fourchette.
Prix moyens des énergies indexés au 1er janvier 2021 (abonnements compris)
Bilan énergétique
DPE_ passoire énergétique logement extrêmement performant logement extrêmement peu performant consommation (énergie primaire) 224 kWh/m²/an émissions* 49 kgCO2/m²/an
DPE_ * Dont émissions de gaz à effet de serre peu d'émissions de CO2 émissions de CO2 très importantes 49 kgCO2/m²/an
18 avenue Mozart
75016 PARIS
Vous ne trouvez pas votre bonheur ? Votre projet d'achat
RAVIER IMMOBILIER, société au capital de 1330000.00 euros. Siège social : 18 Mozart 75016 PARIS. N° de TVA intracommunautaire : FR02452992357. RCS PARIS immatriculé(e) 452992357.
Carte T : CPI 7501 202018 000 024 934. Date de délivrance : 2024-08-13T10:04:30.000000Z. Lieu de délivrance : Paris. Caisse de garantie financière : Compagnie Européenne de Garanties et Cautions. N° de caisse de garantie : 26479TRA191. Adresse de la caisse de garantie : 59, avenue Pierre Mendes - 75013 Paris. Montant de la garantie financière : 110000€ euros.
Carte G : CPI 7501 202018 000 024 934. Date de délivrance : 2024-08-13T10:04:30.000000Z. Lieu de délivrance : Paris. Caisse de garantie financière : Compagnie Européenne de Garanties et Cautions. N° de caisse de garantie : 26479TRA191. Adresse de la caisse de garantie : 59, avenue Pierre Mendes - 75013 Paris. Montant de la garantie financière : 4200000€ euros.
Conformément aux articles L611-1 et suivants et R612-1 et suivants du Code de la consommation, le consommateur est informé qu’il a la possibilité de saisir un ou notre médiateur de la consommation, à savoir MEDIMMOCONSO situé MEDIMMOCONSO 1 Allée du Parc de Mesemena - Bât A - CS25222 - 44505 LA BAULE CEDEX - email : contact@medimmoconso.fr - site : https://medimmoconso.fr/
Barème d'honoraires


Partager ce contenu

Nous contacter


Pour toute demande concernant un bien ou des informations sur nos services, n'hésitez pas à nous contacter via ce formulaire.

Loading...
Les informations recueillies sur ce formulaire sont enregistrées dans un fichier informatisé par Ravier Immobilier pour gérer votre demande de contact. Elles sont conservées pour la durée nécessaire à la gestion de la relation client dans le respect des prescriptions légales applicables et sont destinées au responsable de la publication de ce site : Ravier Immobilier.
Conformément à la loi « informatique et libertés », vous pouvez exercer votre droit d'accès aux données vous concernant et les faire rectifier en contactant Ravier Immobilier contact@ravier-immobilier.com ou en utilisant ce formulaire. Nous vous informons de l’existence de la liste d'opposition au démarchage téléphonique « Bloctel », sur laquelle vous pouvez vous inscrire ici : https://www.bloctel.gouv.fr/